Logo www.erlis.sk

<<  5/325 >>

Spinel 91/503

Zrkadlová varianta
Novinka

Spinel 91/503

Typová rada:
Spinel
Kategória projektu:
Prízemie + Poschodie

Dom na úzku parcelu:
Áno
Dvojgeneračné domy:
Áno

Počet miestností:
6
Počet osôb:
6

Obytná plocha:
90,50
Úžitková plocha:
157,20

Zastavaná plocha:
115,80
Plocha prízemia:
92,40

Plocha poschodia:
64,80
Obostavaný priestor:
737,00

Výška strechy:
6,60 m
Sklon strechy:
1.5 °

Cena projektu s DPH:
3 500,00
Záloha za projekt:
1 050,00

Orient. cena materiálu bez DPH:
109 000,00
Orient. cena na kľúč bez DPH:
218 000,00



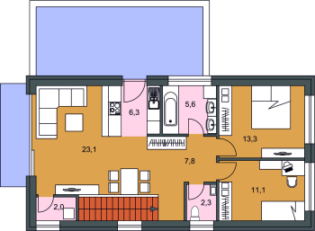
  • Spinel 91/503 je dvojpodlažný moderný rodinný dom s plochou strechou.  Dom má dve samostatné bytové jednotky s tromi izbami. Dom je menšej kategórie s 2 x 3 obytnými miestnosťami.  Garáž je možné zväčšiť na dvojgaráž, prípadne realizovať na úzku parcelu bez garáže.
  • Pôdorysy



  • Pohľady

  • Možné tvary striech

<<  5/325 >>

Zdielajte tento produkt
Facebook  Twitter  Google  LinkedIn  Pinterest  Email 






© Všetky práva vyhradené - www.erlis.sk
Tvorba web stránok

Všetky práva vyhradené - www.erlis.sk
Tvorba web stránok od GRANDIOSOFT
Nastavenie súborov cookies
Na fungovanie našej webovej stránky používame nevyhnutné cookies (essential cookies) umožňujúce realizovať základné funkcionality webovej stránky. Tieto cookies môžete zakázať zmenou nastavení Vášho internetového prehliadača, čo však môže ovplyvniť fungovanie webovej stránky. Radi by sme tiež využívali dobrovoľné cookies (non-essential), ktoré nám pomôžu zlepšiť fungovanie našej webovej stránky. Pre ich povolenie, prosím, odkliknite súhlas.
Ochrana osobných údajov  |  Informácie o cookies
Súhlasím Prispôsobiť Odmietnuť
<Naspäť
Podrobné nastavenie cookies
Súbory cookie používame na zabezpečenie základných funkcií stránky a na zlepšenie vášho používateľského zážitku. Svoj súhlas pre každú kategóriu môžete kedykoľvek zmeniť.
<Nevyhnutné cookies
 
Technické súbory cookies sú nevyhnutné pre správne fungovanie našej webovej stránky. Tieto sa využívajú najmä na uchovávanie Vašich produktov v košíku, zobrazovanie obľúbených výrobkov, nastavenie Vašich preferencií a nákupného procesu. Pre využívanie technických cookies nepožadujeme Váš súhlas, ale spracúvame ich na základe nášho oprávneného záujmu. Váš prehliadač môžete nastaviť tak, aby blokoval alebo Vás upozorňoval na takéto súbory. V takom prípade však nemusia niektoré časti našej webovej stránky správne fungovať.
<Analytické cookies
 
Analytické cookies nám umožňujú meranie výkonu a počet návštev našej webovej stránky.
<Marketingové cookies
 
Marketingové cookies sú využívané reklamnými a sociálnymi sieťami na prispôsobenie zobrazovaných reklám tak, aby pre vás boli čo najzaujímavejšie.
Povoliť všetky Povoliť zvolené Odmietnuť
Uložiť Odmietnuť