Logo www.erlis.sk

<<  94/325 >>

Tyrkys 114/437

Originálna varianta

Tyrkys 114/437

Typová rada:
Tyrkys
Kategória projektu:
Prízemie + Poschodie

Dom na úzku parcelu:
Áno
Počet miestností:
5

Počet osôb:
4-5
Obytná plocha:
113,10

Úžitková plocha:
233,80
Zastavaná plocha:
189,70

Plocha prízemia:
159,00
Plocha poschodia:
74,80

Obostavaný priestor:
960,00
Výška strechy:
6,45 m

Orientácia vstupu:
S, SV, V
Sklon strechy:
4 °

Cena projektu s DPH:
2 750,00
Záloha za projekt:
825,00

Orient. cena materiálu bez DPH:
160 000,00
Orient. cena na kľúč bez DPH:
292 000,00



  • Tyrkys 114/437 je dom väčšej veľkostnej kategórie s 5 obytnými miestnosťami * svojimi rozmermi uspokojí nároky 4-5 člennej rodiny zmenou garáže  na izbu získame ďaľší obytný priestor v dome *  dom je vhodný do rovinatého, prípadne mierne svahovitého terénu
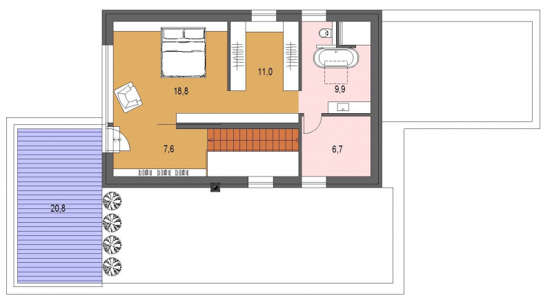
  • Pôdorysy



  • Pohľady



<<  94/325 >>

Zdielajte tento produkt
Facebook  Twitter  Google  LinkedIn  Pinterest  Email 






© Všetky práva vyhradené - www.erlis.sk
Tvorba web stránok

Všetky práva vyhradené - www.erlis.sk
Tvorba web stránok od GRANDIOSOFT
Nastavenie súborov cookies
Na fungovanie našej webovej stránky používame nevyhnutné cookies (essential cookies) umožňujúce realizovať základné funkcionality webovej stránky. Tieto cookies môžete zakázať zmenou nastavení Vášho internetového prehliadača, čo však môže ovplyvniť fungovanie webovej stránky. Radi by sme tiež využívali dobrovoľné cookies (non-essential), ktoré nám pomôžu zlepšiť fungovanie našej webovej stránky. Pre ich povolenie, prosím, odkliknite súhlas.
Ochrana osobných údajov  |  Informácie o cookies
Súhlasím Prispôsobiť Odmietnuť
<Naspäť
Podrobné nastavenie cookies
Súbory cookie používame na zabezpečenie základných funkcií stránky a na zlepšenie vášho používateľského zážitku. Svoj súhlas pre každú kategóriu môžete kedykoľvek zmeniť.
<Nevyhnutné cookies
 
Technické súbory cookies sú nevyhnutné pre správne fungovanie našej webovej stránky. Tieto sa využívajú najmä na uchovávanie Vašich produktov v košíku, zobrazovanie obľúbených výrobkov, nastavenie Vašich preferencií a nákupného procesu. Pre využívanie technických cookies nepožadujeme Váš súhlas, ale spracúvame ich na základe nášho oprávneného záujmu. Váš prehliadač môžete nastaviť tak, aby blokoval alebo Vás upozorňoval na takéto súbory. V takom prípade však nemusia niektoré časti našej webovej stránky správne fungovať.
<Analytické cookies
 
Analytické cookies nám umožňujú meranie výkonu a počet návštev našej webovej stránky.
<Marketingové cookies
 
Marketingové cookies sú využívané reklamnými a sociálnymi sieťami na prispôsobenie zobrazovaných reklám tak, aby pre vás boli čo najzaujímavejšie.
Povoliť všetky Povoliť zvolené Odmietnuť
Uložiť Odmietnuť